Charmante Eigentumswohnung in stilvollem Altbau
Beschreibung
Manche Wohnungen sind nüchtern funktional. Andere haben eine besondere Aura, die wohltut und dezent umschmeichelt. Diese Altbauwohnung aus den 1910-er Jahren in einem klassizistisch-historischem Bürgerhaus ist solch ein Glücksfall. Betritt man die Wohnung, wird der Besucher von hellen, freundlichen und fast drei Meter hohen Räumen empfangen. Ihren Charme verdanken sie dem Vorbesitzer, einem Architekten, der beim aufwändigen Sanieren die schönen Bausubstanz respektiert und mit Neuerungen dezent betont. Bei den Baumaßnahmen wurde ein Lift im Treppenhaus integriert.
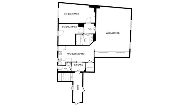
Der ideale Schnitt der Wohnung ist überraschend modern. So wurde etwa die einst abgetrennte Küche durch einen optisch ansprechenden Übergang mit dem Wohnzimmer verbunden und erfüllt, damit den zeitgemäßen Wunsch nach einer offenen, kommunikativen Wohnatmosphäre.
Auf den zweiten Blick fallen dann die Kastenfenster der Wohnung auf. Diese hintereinander verbauten Doppelfenster geben dem Tageslicht nicht nur viel Raum, sie erfüllen zudem die höchste Schallschutzklasse und ermöglichen gemeinsam mit dem massiven Mauerwerk eine optimale Wärmedämmung.
Im Schlafzimmer zum baumbestandenen Innenhof, kann man auch bei offenem Fenster tiefenentspannt schlafen. Leben in wohltuender, gehobener Atmosphäre – was will man mehr?
Der ideale Schnitt der Wohnung ist überraschend modern. So wurde etwa die einst abgetrennte Küche durch einen optisch ansprechenden Übergang mit dem Wohnzimmer verbunden und erfüllt, damit den zeitgemäßen Wunsch nach einer offenen, kommunikativen Wohnatmosphäre.
Auf den zweiten Blick fallen dann die Kastenfenster der Wohnung auf. Diese hintereinander verbauten Doppelfenster geben dem Tageslicht nicht nur viel Raum, sie erfüllen zudem die höchste Schallschutzklasse und ermöglichen gemeinsam mit dem massiven Mauerwerk eine optimale Wärmedämmung.
Im Schlafzimmer zum baumbestandenen Innenhof, kann man auch bei offenem Fenster tiefenentspannt schlafen. Leben in wohltuender, gehobener Atmosphäre – was will man mehr?
Lage
Die Wohnung liegt im Zentrum von Obergiesing in ruhiger Bestlage. Die Haltestellen der öffentlichen Verkehrsmittel Silberhornstraße und Ostfriedhof sind in 5 Minuten fußläufig erreichbar (U2, Staßenbahnen und Busse). Die S Bahnhaltestelle kann in 10 Minuten erreicht werden. Auch alle Autobahnen sind sehr schnell und einfach zu erreichen.
Kurz sind auch die Fußwege zu einem Supermarkt, Drogeriemarkt, Biomarkt, Metzgereien, Bäckereien, zwei Ärztehäusern, oder vier Apotheken. Verschiedene Fachgeschäfte sind vorhanden. Selbst Eisdielen und Gaststätten sind in wenigen Gehminuten erreicht.
Kindergärten und Schule
Ob nun Kleinkinder oder Schüler: Ein ‚Elterntaxi‘ ist nicht vonnöten. Der nächstgelegene Kindergarten ist nur 100 m entfernt und eine Grundschule 150 m. Zwei Gymnasien sind ebenfalls nah und ein weiteres wird per Straßenbahn erreicht.
Kultur, Sport und Freizeit
Alles ist möglich und in kurz zusammengefasst: München!
Kurz sind auch die Fußwege zu einem Supermarkt, Drogeriemarkt, Biomarkt, Metzgereien, Bäckereien, zwei Ärztehäusern, oder vier Apotheken. Verschiedene Fachgeschäfte sind vorhanden. Selbst Eisdielen und Gaststätten sind in wenigen Gehminuten erreicht.
Kindergärten und Schule
Ob nun Kleinkinder oder Schüler: Ein ‚Elterntaxi‘ ist nicht vonnöten. Der nächstgelegene Kindergarten ist nur 100 m entfernt und eine Grundschule 150 m. Zwei Gymnasien sind ebenfalls nah und ein weiteres wird per Straßenbahn erreicht.
Kultur, Sport und Freizeit
Alles ist möglich und in kurz zusammengefasst: München!
Weitere Informationen
Bei dieser Immobilie handelt es sich um ein Baudenkmal mit der Aktennummer D-1-62-000-6094
Beschreibung laut Denkmal Atlas:
* Mietshaus in Ecklage, viergeschossiger Satteldachbau mit Zwerchhäusern und polygonalem Eckerkerturm, barockisierend, um 1910
* bis zu 4 einzeln abgeschlossene Tiefgaragenplätze können dazu erworben werden.
Beschreibung laut Denkmal Atlas:
* Mietshaus in Ecklage, viergeschossiger Satteldachbau mit Zwerchhäusern und polygonalem Eckerkerturm, barockisierend, um 1910
* bis zu 4 einzeln abgeschlossene Tiefgaragenplätze können dazu erworben werden.
- Kaufpreis:
- 890.000 €
- Provision:
- 3 % zzgl. ges. MwSt. vom notariell beurkundeten Verkaufspreis
- Vermarktungsart:
- Kauf
- externe Objnr:
- SK037VL
- Objektart:
- Wohnung
- Objekttyp:
- Etagenwohnung
- Baujahr:
- 1910
- Zustand:
- Gepflegt
- Wohnfläche:
- 91 m²
- Anzahl Zimmer:
- 3
- Anzahl Schlafzimmer:
- 2
- Anzahl Badezimmer:
- 1
- Befeuerung:
- Gas
- Energieausweis:
- es besteht keine Pflicht!