Ein- Zweifamilienhaus mit Potenzial – großzügiges Wohnen auf teilbarem Grundstück
Description
Dieses charmante Zweifamilienhaus bietet zwei separate Wohneinheiten, großzügige
Raumgestaltung und zahlreiche Nutzungsmöglichkeiten – ideal für Familien,
Mehrgenerationenwohnen oder als Kapitalanlage.
Die abgeschlossene Wohneinheit im Erdgeschoss überzeugt mit ca. 7 Zimmern, einer geräumigen
Wohnküche, einem Badezimmer sowie einer großen Terrasse mit gemauertem Pizzaofen – perfekt
für gesellige Abende.
Neben der zentralen Öl-Heizung sorgt ein zusätzlicher Pelletsofen für wohlige Wärme und ein
behagliches Wohnklima. Die Wohnung ist lichtdurchflutet und großzügig geschnitten – ideal für
Familien oder Paare mit Platzbedarf.
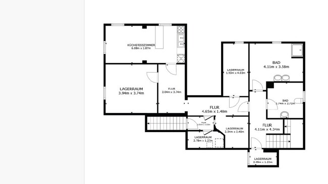
Im Obergeschoss befindet sich eine weitere eigenständige Wohneinheit mit einem großzügigen,
lichtdurchfluteten Wohnzimmer und direktem Zugang zu einem überdachten Balkon – hier lässt
sich der Feierabend in aller Ruhe genießen.
Die Kellerräume bieten viel Stauraum – inklusive einer integrierten Bar und einer Werkstatt für
Hobbybastler oder Handwerker.
Ein besonderes Highlight ist das großzügige, teilbare Grundstück, das die Möglichkeit für den
Bau eines weiteren Wohngebäudes bietet – eine attraktive Option für Investoren oder Familien mit
Zukunftsplänen.
Raumgestaltung und zahlreiche Nutzungsmöglichkeiten – ideal für Familien,
Mehrgenerationenwohnen oder als Kapitalanlage.
Die abgeschlossene Wohneinheit im Erdgeschoss überzeugt mit ca. 7 Zimmern, einer geräumigen
Wohnküche, einem Badezimmer sowie einer großen Terrasse mit gemauertem Pizzaofen – perfekt
für gesellige Abende.
Neben der zentralen Öl-Heizung sorgt ein zusätzlicher Pelletsofen für wohlige Wärme und ein
behagliches Wohnklima. Die Wohnung ist lichtdurchflutet und großzügig geschnitten – ideal für
Familien oder Paare mit Platzbedarf.
Im Obergeschoss befindet sich eine weitere eigenständige Wohneinheit mit einem großzügigen,
lichtdurchfluteten Wohnzimmer und direktem Zugang zu einem überdachten Balkon – hier lässt
sich der Feierabend in aller Ruhe genießen.
Die Kellerräume bieten viel Stauraum – inklusive einer integrierten Bar und einer Werkstatt für
Hobbybastler oder Handwerker.
Ein besonderes Highlight ist das großzügige, teilbare Grundstück, das die Möglichkeit für den
Bau eines weiteren Wohngebäudes bietet – eine attraktive Option für Investoren oder Familien mit
Zukunftsplänen.
Energieausweis
- A+
- A
- B
- C
- D
- E
- F
- G
- H
- 0
- 25
- 50
- 75
- 100
- 125
- 150
- 175
- 200
- > 225
Location
Klosterlechfeld ist eine Gemeinde im schwäbischen Landkreis Augsburg, ca. 20 km südlich von Augsburg zwischen Lech und Wertach und nördlich von Landsberg.
Die praktische Nähe zur B17 ermöglicht einen schnellen Anschluss an die Städte Augsburg, Landsberg/Lech und München.
Der Bahnhof ist in unmittelbarer Nähe sowie eine Bushaltestelle
Es finden sich in Untermeitingen/Klosterlechfeld zahlreiche Einkaufsmöglichkeiten, darunter Supermärkte, Bäckereien und weitere Fachgeschäfte.
Auch mehrere Kindergärten und Schulen sind vor Ort, was die Lage besonders attraktiv für Familien macht.
Ein Ärztezentrum bietet eine umfassende medizinische Versorgung mit mehreren Hausärzten, Apotheken
sowie sonstige medizinische Dienstleistungen wie Hilfs- und Heilberufe.
Klosterlechfeld bietet eine Vielzahl von Unternehmungsmöglichkeiten, die sowohl kulturelle als
auch sportliche Aktivitäten umfassen. Zu den Highlights gehören die Wallfahrtskirche Maria Hilf,
das ehemalige Kloster und der Kalvarienberg. Zusätzlich gibt es zahlreiche Vereine, die ein breites
Spektrum an Freizeitmöglichkeiten wie Fußball, Tischtennis, Tennis, Turnen, Stockschiessen,
Schießsport und Wanderungen anbieten.
Auch die Natur rund um Klosterlechfeld lädt zu Aktivitäten wie Radfahren, Wandern und Spaziergängen ein, besonders entlang des Lechs.
Die praktische Nähe zur B17 ermöglicht einen schnellen Anschluss an die Städte Augsburg, Landsberg/Lech und München.
Der Bahnhof ist in unmittelbarer Nähe sowie eine Bushaltestelle
Es finden sich in Untermeitingen/Klosterlechfeld zahlreiche Einkaufsmöglichkeiten, darunter Supermärkte, Bäckereien und weitere Fachgeschäfte.
Auch mehrere Kindergärten und Schulen sind vor Ort, was die Lage besonders attraktiv für Familien macht.
Ein Ärztezentrum bietet eine umfassende medizinische Versorgung mit mehreren Hausärzten, Apotheken
sowie sonstige medizinische Dienstleistungen wie Hilfs- und Heilberufe.
Klosterlechfeld bietet eine Vielzahl von Unternehmungsmöglichkeiten, die sowohl kulturelle als
auch sportliche Aktivitäten umfassen. Zu den Highlights gehören die Wallfahrtskirche Maria Hilf,
das ehemalige Kloster und der Kalvarienberg. Zusätzlich gibt es zahlreiche Vereine, die ein breites
Spektrum an Freizeitmöglichkeiten wie Fußball, Tischtennis, Tennis, Turnen, Stockschiessen,
Schießsport und Wanderungen anbieten.
Auch die Natur rund um Klosterlechfeld lädt zu Aktivitäten wie Radfahren, Wandern und Spaziergängen ein, besonders entlang des Lechs.
Other Information
Ein größerer Anbau hat 1990 sattgefunden
- Kaufpreis:
- 598.000 €
- Provision:
- 3 % zzgl. ges. MwSt. vom notariell beurkundeten Verkaufspreis
- Vermarktungsart:
- Kauf
- externe Objnr:
- UL093RB
- Objektart:
- Haus
- Objekttyp:
- Einfamilienhaus
- Baujahr:
- 1960
- Zustand:
- Renovierungsbedürftig
- Wohnfläche:
- 187 m²
- Grundstücksgröße:
- 1.002 m²
- Nutzfläche:
- 263 m²
- Anzahl Zimmer:
- 7
- Befeuerung:
- Öl
- Endenergiebedarf:
- 254,1 kWh/(m²a)
- Energieausweis:
- Bedarfsausweis
- Energieausweis gültig bis:
- 22.07.2035
- Energieeffizienzklasse:
- H